U gebruikt een verouderde internetbrowser.
We raden u aan om de meest recente internetbrowser te installeren voor de beste weergave van deze website.
Een internetbrowser die up to date is, staat ook garant voor veilig surfen.

Helaas, dit pand is verhuurd

2242 RV Wassenaar

Omschrijving

Welkom in dit mooie, ongemeubileerde 2-slaapkamer huis met energielabel A in Wassenaar. Gelegen in de Regthuyshof binnenplaats, met eigen privé parkeerplaats, midden in het bruisende hart van Wassenaar en naast de populaire winkelstraat “Langstraat,” geniet je van directe toegang tot een mix van boetieks, restaurants, cafés en essentiële winkels. Forenzen en gezinnen zullen de uitstekende locatie waarderen: de American School of The Hague is slechts 10 minuten fietsen, terwijl de British School binnen 16 minuten per fiets te bereiken is. Openbaar vervoer is op loopafstand, en belangrijke snelwegen zoals de A44 en A4 zijn gemakkelijk bereikbaar, wat snelle verbindingen naar Den Haag, Leiden, Amsterdam en Rotterdam biedt.

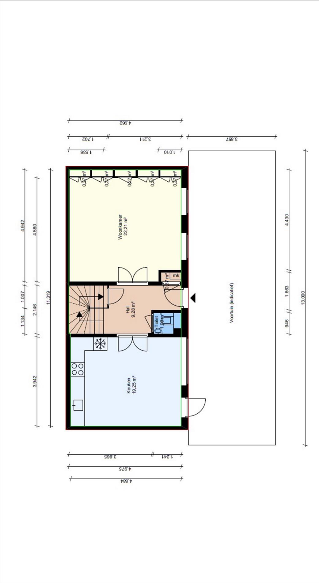
Indeling:
Voortuin, entree woning, ruime hal met separaat toilet en toegang tot alle vertrekken, via openslaande deuren heeft u toegang tot de woonkamer welke is voorzien van een grote kastenwand en sfeervolle gas openhaard. De ruime eetkeuken bevindt zich aan de andere kant van de hal en is ook te bereiken via openslaande deuren. De keuken is voorzien is uitgerust met alle benodigde inbouwapparatuur en is voorzien van een deur naar de tuin.

Kelder:
De kelder met stahoogte en vaste trap heeft een oppervlak van nog eens extra 18m2 en wordt bij de kenmerken benoemd als overige inpandige ruimte.
Hier bevinden zich de wasmachine en droger aansluiting, waardoor de kelder behalve opslagruimte gebruikt kan worden als wasruimte.

Eerste verdieping:
Overloop met separaat toilet en kast voor de Cv-installatie, 2 karaktervolle slaapkamers welke met de hoge balken plafonds, praktisch ingedeelde badkamer met inloopdouche en dubbele wastafel.

Bijzonderheden:
- Goed geïsoleerd en volledig voorzien van dubbel glas;
- Mooie parketvloer door gehele woning;
- Eigen parkeerplaats op het afgesloten parkeerterrein;
- Borg 2 maanden huur;
- Minimale huurperiode van 1 jaar;
- Servicekosten € 83,- per maand;
- Huurprijs is exclusief nutsvoorzieningen;
- Huisdieren niet toegestaan,
- Niet geschikt voor studenten/woningdelers;
- Geen garantstelling door derden.


Niet gevonden wat u zocht? Schrijf u dan vrijblijvend in op onze nieuwsbrief en blijf op de hoogte van ons recentste aanbod.
Schrijf u in
Terug naar boven
Sluit menu Remmerswaal Makelaardij